0

Nature en ville, le bon compromis ? On l’a trouvé

Nancy (54000)
Réf : 2862

Nature en ville, le bon compromis ? On l’a trouvé

Bienvenue dans ce petit havre de paix perché au 4e étage d’une résidence élégante, en plein cœur des Rives de Meurthe. Un coin de verdure à deux pas de la Place Stan' ? Oui, ça existe. Et non, ce n’est pas un mirage immobilier.

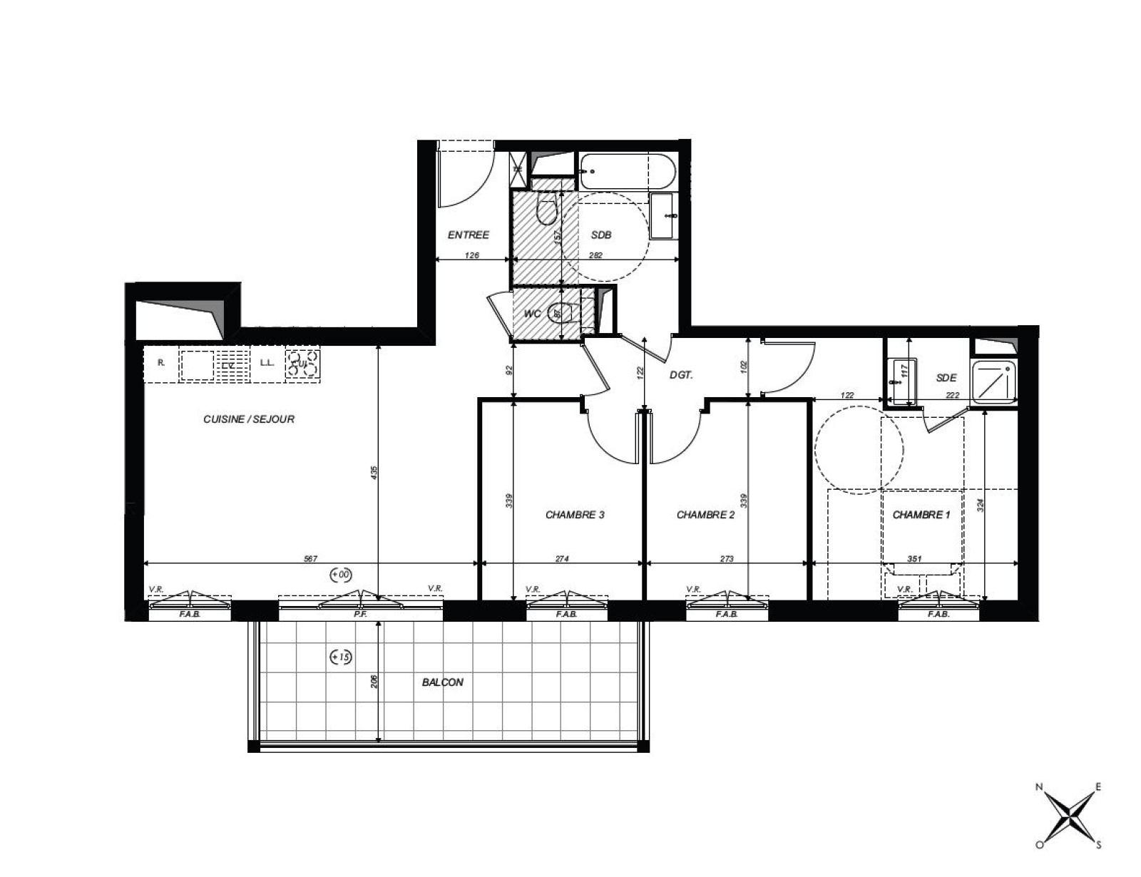
Ici, la lumière fait son show grâce à une double exposition et une hauteur sous plafond de 2,70 m qui donne de l’air à vos idées. Le séjour de 26 m² s’ouvre sur un balcon de 14 m² exposé Sud-Ouest, idéal pour vos apéros face au soleil couchant. Trois chambres pour accueillir enfants, colocataires, ou bureaux de télétravail (ou les trois, soyons fous), une salle d’eau pour les express, une salle de bains pour les longues journées. Et les WC séparés pour la paix des ménages, évidemment.

Tout autour ? Écoles, parcs, commerces, tram… tout ce qu’il faut pour une vie urbaine qui ne sacrifie rien au confort. Et en prime : des performances énergétiques A/B, une isolation qui coupe le monde sans couper du monde, un réseau de chauffage urbain, des locaux vélos, une place de parking et même des commerces en pied d’immeuble.

Vous cherchez du durable, du confortable, du bien pensé ? Vous venez de tomber sur le bon palier.

Prêt à faire un pas vers votre futur ? C’est par ici.
Blique, votre partenaire de vues imprenables.

Prix du bien 313 000 €
Pièce(s) 4
Chambre(s) 3

Caractéristiques du bien

Caractéristiques Valeurs
Code postal 54000
Surface habitable (m²) 75 m²
Surface loi Carrez (m²) 75,49 m²
Nombre de chambre(s) 3
Nombre de pièces 4
Etage 4
Nombre de niveaux 5
Ascenseur OUI
Vue Dégagée
Nb de salle de bains 1
Nb de salle d'eau 1
Cuisine Sans
Mode de chauffage Mixte
Type de chauffage Radiateur
Format de chauffage TRAD_FORMAT_CHAUFF_URBAIN
Interphone OUI
Balcon OUI
Terrasse OUI
Sous/sol SANS
Murs mitoyens 2
Cave NON
Nombre de parking 1
Exposition Sud-Ouest
Année de construction 2025

Infos financières

Caractéristiques Valeurs
Prix de vente 313 000 €
Les honoraires d'agence seront intégralement à la charge du vendeur  
Charges 80 €
Taxe foncière annuelle 1 100 €

Bilans énergétiques

DPE GES
Ce bien vous est proposé par
Ce bien vous intéresse ?
Fieldset par défaut
Fieldset par défaut
Validation

* Champs obligatoires

Contacter l'agence
Validation
Les informations recueillies sur ce formulaire sont enregistrées dans un fichier informatisé par La Boite Immo agissant comme Sous-traitant du traitement pour la gestion de la clientèle/prospects de l'Agence / du Réseau qui reste Responsable du Traitement de vos Données personnelles. La base légale du traitement repose sur l'intérêt légitime de l'Agence / du Réseau. Elles sont conservées jusqu'à demande de suppression et sont destinées à l'Agence / au Réseau. Conformément à la loi « informatique et libertés », vous disposez des droits d’accès, de rectification, d’effacement, d’opposition, de limitation et de portabilité de vos données. Vous pouvez retirer votre consentement à tout moment en contactant directement l’Agence / Le Réseau. Consultez le site https://cnil.fr/fr pour plus d’informations sur vos droits. Si vous estimez, après avoir contacté l'Agence / le Réseau, que vos droits « Informatique et Libertés » ne sont pas respectés, vous pouvez adresser une réclamation à la CNIL. Nous vous informons de l’existence de la liste d'opposition au démarchage téléphonique « Bloctel », sur laquelle vous pouvez vous inscrire ici : https://www.bloctel.gouv.fr Dans le cadre de la protection des Données personnelles, nous vous invitons à ne pas inscrire de Données sensibles dans le champ de saisie libre.
Ce site est protégé par reCAPTCHA, les Politiques de Confidentialité et les Conditions d'Utilisation de Google s'appliquent.