0

SUR LA PLACE !

Anthelupt (54110)
Réf : 2687

SUR LA PLACE !


Visitez ce bien autrement en vous rendant de suite sur notre site internet !

Promenez-vous dedans grâce à la visite virtuelle afin d’en apprécier toutes les caractéristiques et découvrez plus de photos également.


C’est sur la place que ça se passe ! Eh oui, c’est place des tilleuls à Anthelupt que j’aurai le plaisir de vous faire découvrir l’ancien bistro du village !

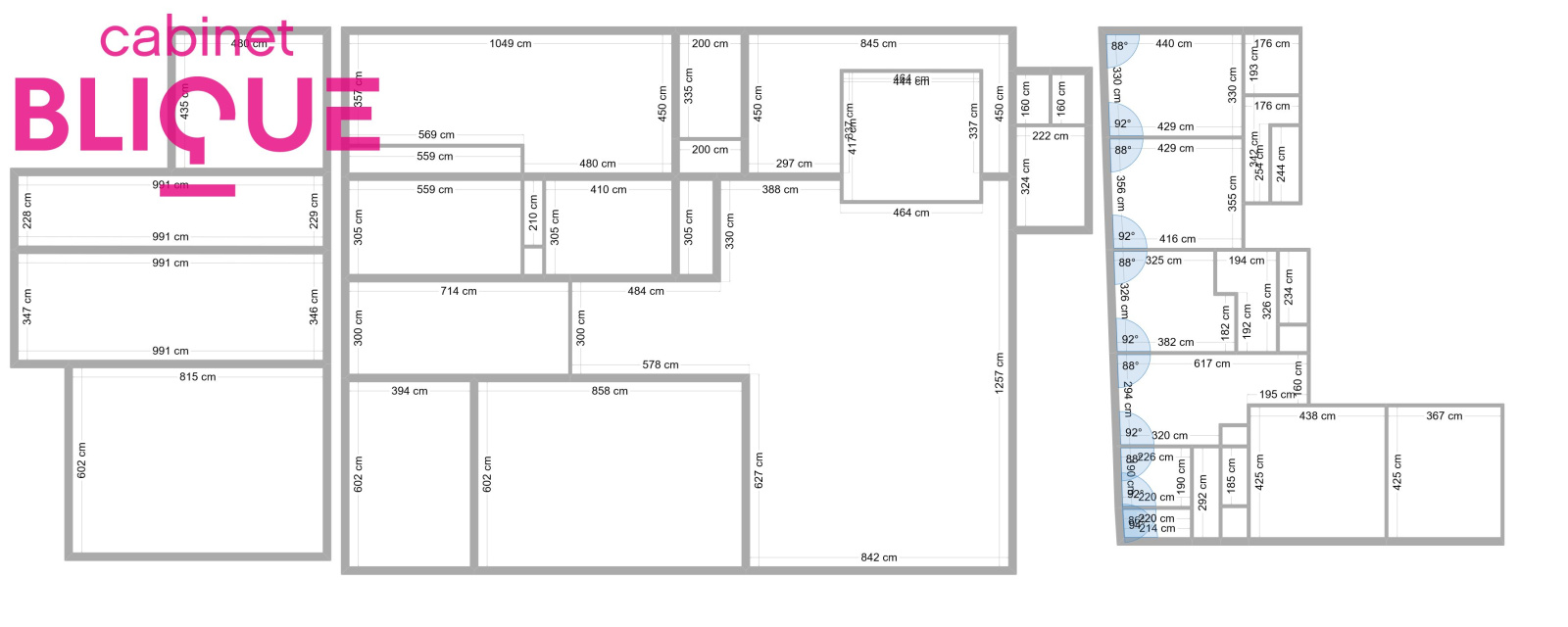
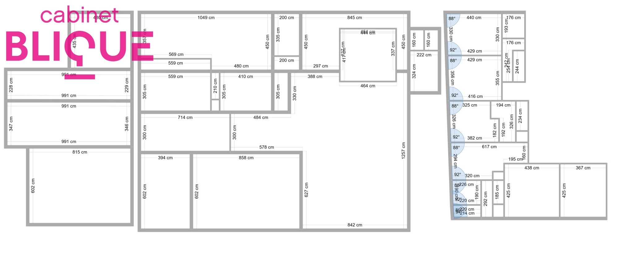
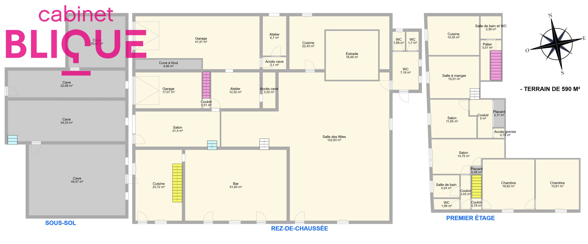
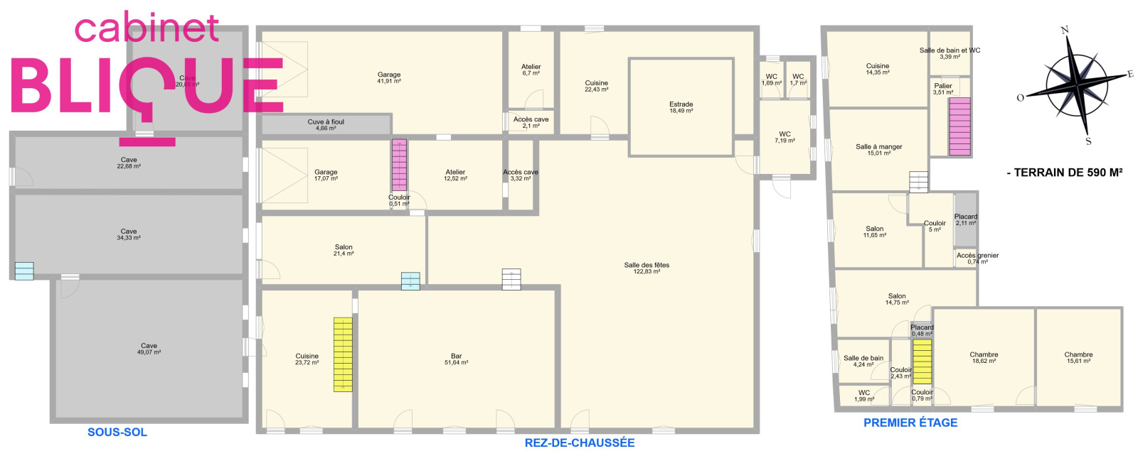
Laissez place à tous vos projets avec cette maison de 450 m² de surface plancher sur deux niveaux bâtie sur une parcelle de 600 m² environ.

Immeuble locatif, maison d’habitation, commerce ou tous types de projets peuvent être réalisables dans cette maison à rénover en intégralité.

Actuellement elle est composée d’environ 125 m² de cave en sous-sol.

Au rez-de-chaussée : Deux garages de 41 et 17 m², un atelier de 12 m², un salon de 21 m², une cuisine de 23 m², une salle de bar de 51 m², une salle des fêtes de 122 m², une estrade de 18 m², une seconde cuisine pour la grande salle de 22 m² et des sanitaires.

Au premier étage : Un appartement prêt à être loué de 110 m² environ composé de deux chambres de 18.5 et 15.5 m², une salle de bain de 4.5 m² et une salle d’eau avec WC de 3.5 m², une cuisine de 14 m², deux salons de 11.5 et 14.5 m² de nombreux rangements et un WC séparé.

Besoin d'espace supplémentaire ? Un grenier au premier et deuxième étage peut être également aménagé à votre convenance.

C’EST SUR LA PLACE A ANTHELUPT ! A 10 minutes de Dombasle-sur-Meurthe, 20 minutes de Nancy et 10 minutes de Lunéville, avec un accès rapide aux autoroutes (5 minutes). Ecole primaire au sein de la commune.


Votre agent commercial n’est pas glacial, il sait :

Estimer (sans louche)

Photographier (sans l’aide de Gérard et son smartphone)

Visiter (sans gaffe à la Pierre Richard, quoique !)

Tirer les plans (à l’échelle, pas sur la comète)

Vendre (si on change 4 lettres à BLIQUE, ça fait VENDUE, eh ouais !)

découvrir le bien
Prix du bien 149 000 €
Pièce(s) 10
Chambre(s) 5

Caractéristiques du bien

Caractéristiques Valeurs
Code postal 54110
Surface habitable (m²) 450 m²
surface terrain 590 m²
Nombre de chambre(s) 5
Nombre de pièces 10
Nombre de niveaux 3
Vue Sur la place du village.
Nb de salle de bains 1
Nb de salle d'eau 1
Cuisine Séparée
Type de cuisine SEMI-EQUIPEE
Interphone NON
Visiophone NON
Balcon OUI
Terrasse OUI
Sous/sol AVEC
Murs mitoyens 1
Nombre de garage 2
Cave OUI
Nombre de parking 2
Surface cave (m²) 125
Exposition Sud
Année de construction 1900

Infos financières

Caractéristiques Valeurs
Prix de vente 149 000 €
Les honoraires d'agence seront intégralement à la charge du vendeur  
Taxe foncière annuelle 940 €

Bilans énergétiques

DPE GES
Ce bien vous est proposé par
Ce bien vous intéresse ?
Fieldset par défaut
Fieldset par défaut
Validation

* Champs obligatoires

Contacter l'agence
Validation
Les informations recueillies sur ce formulaire sont enregistrées dans un fichier informatisé par La Boite Immo agissant comme Sous-traitant du traitement pour la gestion de la clientèle/prospects de l'Agence / du Réseau qui reste Responsable du Traitement de vos Données personnelles. La base légale du traitement repose sur l'intérêt légitime de l'Agence / du Réseau. Elles sont conservées jusqu'à demande de suppression et sont destinées à l'Agence / au Réseau. Conformément à la loi « informatique et libertés », vous disposez des droits d’accès, de rectification, d’effacement, d’opposition, de limitation et de portabilité de vos données. Vous pouvez retirer votre consentement à tout moment en contactant directement l’Agence / Le Réseau. Consultez le site https://cnil.fr/fr pour plus d’informations sur vos droits. Si vous estimez, après avoir contacté l'Agence / le Réseau, que vos droits « Informatique et Libertés » ne sont pas respectés, vous pouvez adresser une réclamation à la CNIL. Nous vous informons de l’existence de la liste d'opposition au démarchage téléphonique « Bloctel », sur laquelle vous pouvez vous inscrire ici : https://www.bloctel.gouv.fr Dans le cadre de la protection des Données personnelles, nous vous invitons à ne pas inscrire de Données sensibles dans le champ de saisie libre.
Ce site est protégé par reCAPTCHA, les Politiques de Confidentialité et les Conditions d'Utilisation de Google s'appliquent.